






Va oferim spre inchiriere un spatiu comercial situat in Zona Piata Muncii - Basarabia cu acces imediat catre Soseaua Miohai Bravu, Basarabia, Decebal, Calea Calarasilor
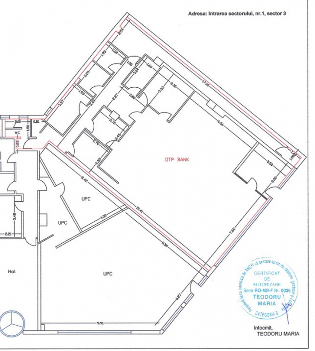
Spatiul este situat la parter, are 2 cai de acces, vitrina de 12 ml si o structura flaxibila; In acest moment exista o camera de aproximativ 150 mp si cateva compartimentari de rigips ce pot fi reorganizate.
Este ideal pentru clinica, laborator, birouri sau orice acctivitate comerciala ce isi doreste acces usor catre mijloacele de transport in comun
Pentru detalii si vizionari nu ezitati sa ma contactati.