














Va invit sa analizati aceasta cladire, de vanzare, situata langa Palatul Cotroceni. Este un imobil construit in 2015, o cladire multifunctionala cu destinatie de birouri, dotata si finisata la un standard de calitate foarte ridicat.
Imobilul este proiectat si a fost executat cu o foarte mare atentie la detalii, spatiile sunt versatile si foarte luminoase. Proiectul arhitectural este unul foarte apreciat de specialistii din domeniu, fiind nominalizat la Premiile Bienalei Nationale de Arhitectura editia 2016, dar si la nivel european prin nominalizarea la Premiul UE pentru Arhitectura Contemporanat 2027- Premiul Mies Van der Rohe.
Nu puteam folosi o descriere mai potrivita, decat aceea a celor care au gandit, proiectat si executat aceasta cladire:
"Proiectul este o încercare de a aborda problemele care sunt importante pentru noi: cum putem compensa (la scară mică) deficitul tot mai mare de zone verzi din București și relația dintre spațiul interior/privat și exterior/spațiul colectiv.
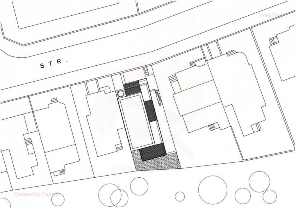
Este situat pe o strada linistita cu case vechi, copaci inalti, parfum de tei si caprifoi, nu departe de Palatul Cotroceni. Limita din spate a proprietății este sudică și este mărginită de un parc cu copaci înalți care arată silueta Academiei Militare.
Am încercat să păstrăm clădirea fidelă tipologic și morfologic spațiului din jur: cartier rezidențial caracterizat prin străduțe cu parcele înguste.
Cladirea pe 4 nivele are cate un apartament pe etaj si un subsol cu curte englezeasca. Această clădire a înlocuit o clădire veche fără valoare arhitecturală și cu serioase probleme structurale. Scopul proiectului a fost o casă „vie” capabilă să ofere senzații vizuale, tactile și olfactive, cu grădină – terase și „chiriași de copaci”, cu spaliere pentru plante cățărătoare și suporturi pentru flori de caprifolium. În timp, toate cele de mai sus ar putea forma „structuri bio-piele vii”, acționând ca dispozitive de răcire. Trecerea spațiului exterior / spațiului public al orașului și spațiul interior / personal este filtrul arhitectural al clădirii . Terasele sunt elemente prețioase care mediază și articulează interacțiunea dintre spațiul colectiv și spațiul singular.
Arhitectura reflectă viața interioară care evoluează în timp în funcție de modul în care este locuită de patina materialelor și de creșterea plantelor. Conține promisiuni și incertitudini. Materialele care au fost folosite pentru construcție sunt ingredientele care au făcut ca conceptul să prindă viață. Folosirea materialelor devine o expresie „sinceră” care nu ascunde imperfecțiunile și scoate la iveală robustețea etapelor de construcție – beton la vedere, suduri, asamblare de metale și sticlă. Rezultatul vorbește prin contraste între materiale, cu lumini și umbre reflectorizante care depind de anotimp și de momentul zilei. Terenul dificil - cu un nivel ridicat al apei și trei izvoare active descoperite în timpul lucrărilor - a necesitat operațiuni controlate de demontare, consolidare și hidroizolare a incintei. De la început până la sfârșit (1 an) construcția a fost supravegheată și condusă în toate fazele direct de către arhitecți.
Lemnul este folosit ca material „viu” cu sensibilitate deosebită, proprietăți tactile, capabil să „atrage” și să inducă o anumită stare. Locația sa este aleasă pentru a permite apropierea, atingerea directă. Prin urmare, fațada din zona teraselor are elemente verticale realizate integral din lemn tratat cu ulei. Contribuie la compoziția generală a casei, dar este accesibilă direct și de aproape. Plafoanele din lemn sunt foarte vizibile din stradă și foarte plăcute de pe terase, încadrate de margini din plăci de metal negre. . Plăcile din lemn și metal sunt montate cu atenție, cu caneluri pe pereți, tavane și punți, permițând ventilația și schimbările de dimensiune datorită variațiilor de umiditate și temperatură. "
In prezent este inchiriata in totalitate, are un randament bun, contractele de inchiriere sunt pe perioada lunga, iar chiriasii sunt foarte seriosi.
Asadar, va invitam la vizionare !