




























Situată într-o zonă liniștită și bine conectată din Drumul Taberei, această proprietate individuală se remarcă prin suprafața generoasă, compartimentarea versatilă și arhitectura aparte, fiind ideală atât pentru rezidențial, cât și pentru activități comerciale precum after-school, clinică, birouri sau alte funcțiuni mixte.
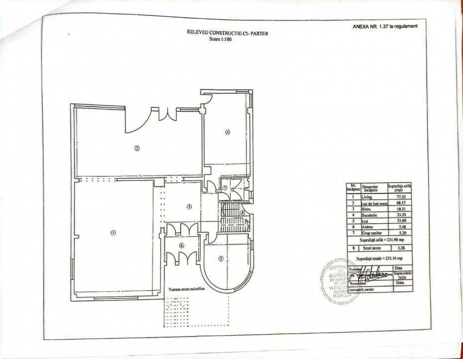
Imobilul dispune de o suprafață construită desfășurată de 865 mp și o amprentă la sol de 235 mp, fiind organizat pe subsol, parter, două etaje și pod.
Compartimentare:
Subsol: garaj, cameră tehnică și cramă
Parter: birou, bucătărie, zonă de dining și living spațios cu acces direct către terasa din curtea din spate
Etajele 1 și 2: dormitoare, băi, spații de depozitare și spălătorie, completate de două balcoane (față/spate)
Etaj 2: include și o zonă de relaxare cu saună
Pod: spațiu suplimentar ce poate fi amenajat în funcție de necesități
În exterior, proprietatea beneficiază de o curte generoasă, unde regăsim o piscină exterioară, perfectă pentru relaxare sau pentru a completa funcționalitatea unei activități comerciale.
Potențial & oportunitate:
Proprietatea nu este finisată la standardele actuale premium, însă tocmai acest aspect oferă viitorului proprietar libertatea de a o amenaja și personaliza după propriul gust sau în funcție de destinația dorită. Structura solidă, suprafața amplă și compartimentarea eficientă o transformă într-o bază excelentă pentru un proiect modern.
Arhitectura casei este una cu personalitate, greu de replicat în construcțiile noi, oferind un avantaj clar pentru cei care caută un imobil cu caracter.
Pentru a evidenția potențialul real al proprietății, în prezentare sunt incluse și randări de renovare, care ilustrează direcții posibile de amenajare și transformare.
Recomandată pentru:
locuință familială spațioasă
after-school / grădiniță
clinică medicală sau centru de recuperare
sediu firmă / birouri
activități mixte rezidențial + business
O proprietate rară prin dimensiuni și versatilitate, cu un potențial real de a deveni un spațiu spectaculos, fie pentru locuit, fie pentru dezvoltarea unei afaceri.