










Avem plăcerea să vă prezentăm o oportunitate rară pentru cei care caută spațiu, lumină și libertatea de a-și crea locuința exact așa cum își doresc – un apartament de 4 camere situat la etajul 10, pe strada Lacul Zănoaga nr. 33, într-o zonă liniștită și bine conectată a cartierului Militari.
Poziționarea la etajul 10 oferă unul dintre cele mai apreciate avantaje de către cunoscători: panoramă deschisă, lumină naturală pe tot parcursul zilei, intimitate crescută fără vecini deasupra și un nivel redus de zgomot, pentru un confort autentic acasă. Un beneficiu important, este faptul că o parte din apartament are deasupra etaj tehnic, ceea ce contribuie la un plus de protecție termică și la reducerea variațiilor de temperatură.
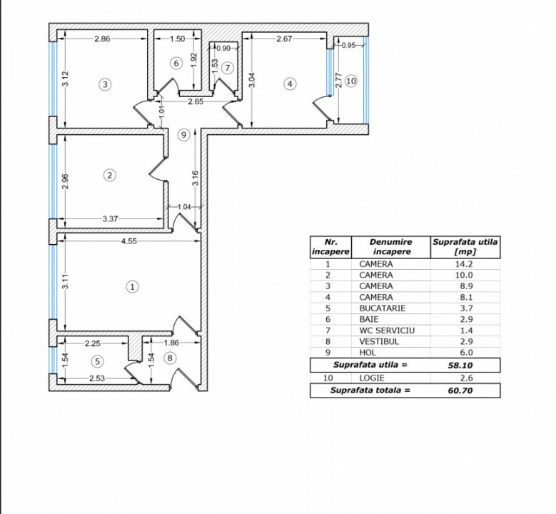
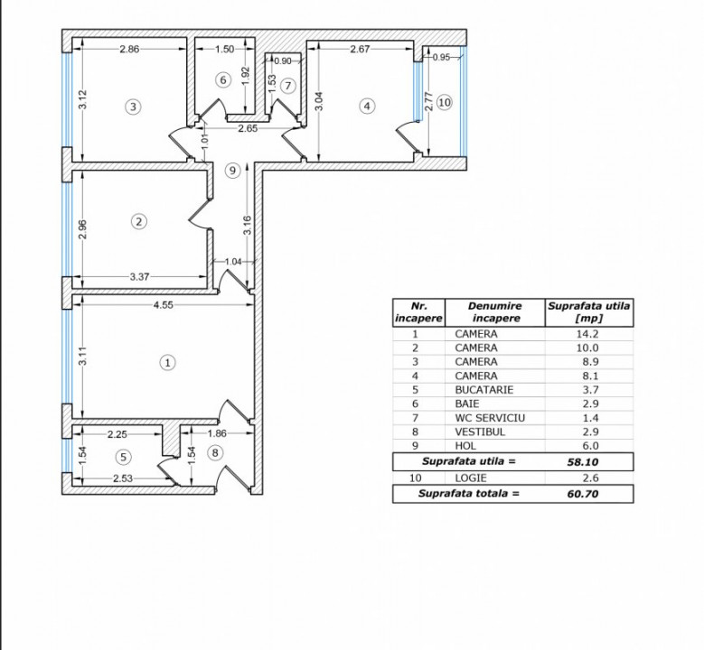
Imobil construit în anul 1973, apartamentul beneficiază de o suprafață utilă totală de 60,7 mp și o compartimentare semidecomandată, ideală pentru familii sau pentru cei care doresc delimitarea eficientă a spațiilor.
Intrarea se face printr-un hol de aproximativ 3 mp, cu acces către bucătărie și zona de zi; livingul continuă armonios spațiul, iar un al doilea hol generos de 6 mp conectează cele trei dormitoare, baia principală cu cadă, grupul sanitar de serviciu și dormitorul final cu balcon.
Toate ferestrele au fost recent înlocuite cu tâmplărie de calitate Rehau, un avantaj important pentru eficiență termică și confort, în timp ce interiorul oferă libertatea unei reamenajări complete, astfel încât să vă personalizați locuința după propriul stil și standard.
Vederea este mixta, zona oferind liniste, siguranta si multe spatii verzi in proximitate.
Acces facil către transportul public: aproximativ 15 minute de mers pe jos până la stațiile de metrou Gorjului și Păcii, iar la doar 2 minute regăsim liniile STB 178 și 106, pentru conexiuni rapide în oraș.
Zona este ideală pentru familii, cu acces rapid către unități de învățământ precum Școala Gimnazială 198 Regina Maria, Școala Gimnazială 174 Constantin Brâncuși, Școala Gimnazială 160 Sfânta Treime, grădinița Dumbrava Minunilor și creșa Harap Alb
În proximitate se află Policlinica Apusului, centre comerciale- Piata Apusului și toate facilitățile necesare unui stil de viață confortabil.
O locuință cu vedere, liniște și potențial real de transformare într-un cămin modern, adaptat perfect nevoilor dumneavoastră.
Vă invităm la vizionare pentru a descoperi personal avantajele acestui apartament și pentru a-i vedea adevăratul potențial de acasă ideal