











Va oferim spre vanzare apartamente proaspat finalizate in Bdul Ferdinand nr 126 D cu acces usor catre Mihai Bravu, Iancului, Obor, Mega Mall
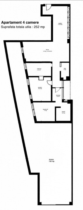
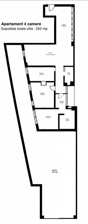
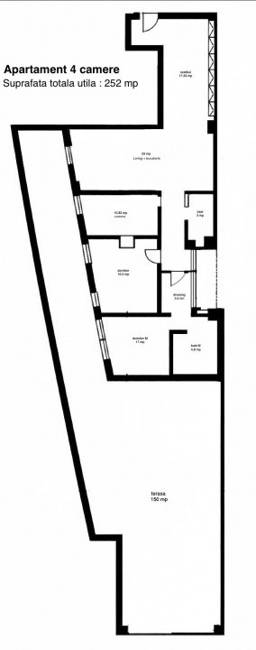
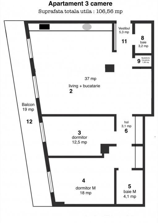
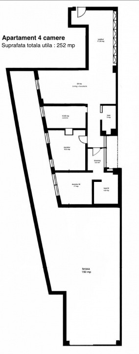
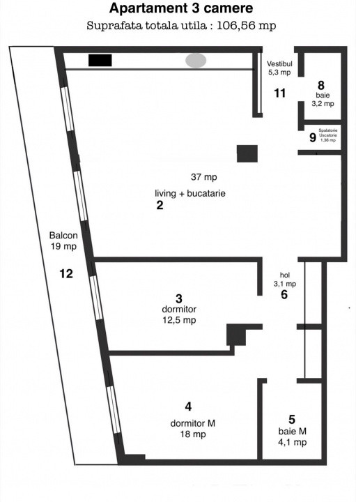
Blocul este in curs de finalizare, Aprilie 2026, are regim mic de inaltime cu Spatiu Comercial la Parter ( 200 mp disponibil la inchiriat) 10 apartamente cu 3 si 4 camere cu suprafete generoase + un apartament tip Penthouse cu o terasa de 150 mp.
Inaltimea camerelor este de peste 3 m
Apartamentele se pot preda "la cheie" ( cu finisaje la alegere ) sau la alb
Sunt disponibile si locuri de parcare si boxe.
Pentru detalii si vizionari nu ezitati sa ma contactati.
*Informațiile și specificațiile prezentate sunt sau pot fi cu titlu informativ și nu reprezintă o obligație contractuală. Acestea pot fi modificate fără notificare prealabilă. Recomandăm verificarea tuturor detaliilor înainte de încheierea unei tranzacții.